Multi-functional Family Bathroom in New Malden
- Project cost: £5,500 - £5,600
- Project year: 2024
- Country:
The client envisioned a contemporary and vibrant family bathroom that could cater to the needs of a busy family while providing a comfortable and stylish retreat.
The main challenge was balancing the client’s needs and wants, To understand the client’s preferences, we focused on what they enjoyed about their current bathroom, aiming to amplify the positives and minimise the negatives. Once these priorities were established, we tried various layouts and styles during the project's progression, experimenting with different looks, the client and our team pinpointed the best layout that combined functionality with a contemporary aesthetic.
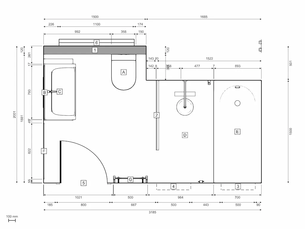
The must-haves included a spacious, walk-in shower combined with a bath, ample storage, and aesthetic elements that reflect a contemporary style while being durable and easy to maintain. The transformation involved a sleek vanity unit that provides ample counter space, complemented by a large mirror to enhance the room’s depth and light and the walk-in shower is both practical and elegant, featuring a modern, grid-style glass partition.
View The Cloakroom and The Shower Room





































































