Bold Shower Room in a Compact Space
- Project cost: £7,500 - £10,000
- Project year: 2025
- Country: United Kingdom
- Maximise function and aesthetic impact in a tight footprint, with a strong emphasis on materiality and layout.
Key Features:
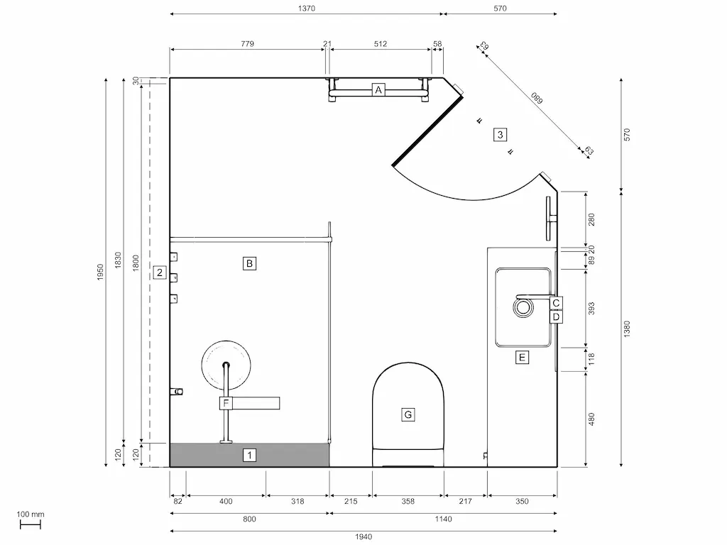
- Walk-in shower with fluted glass screen for a modern, textured touch and open-plan feel.
- Feature bottle green tiles create a striking contrast against stone-effect neutral tiles, blending bold colour with natural texture.
- AVA brushed brass brassware offers an elegant, muted tone, adding warmth without overpowering the palette.
- Faeber bespoke basin and vanity unit in a concrete finish with walnut drawers, tailored for the space to offer generous counter surface and slimline depth.
- Wall-hung Faeber toilet maximises floor space and enhances the feeling of openness in a narrow layout.
- London Showers walk-in screen delivers minimal, architectural lines for a clean finish.
Client Vision:
- Design-savvy and detail-focused, the client had a clear vision and strong preferences for material choices and layout. Functionality was just as important as the visual impact.
Process:
- The client visited our showroom for a design consultation, where we refined layout options to suit the tight space. Storage, symmetry, and usability were key talking points throughout the process.
- Careful planning allowed us to accommodate a full vanity unit with usable counter space and storage, while still maintaining clear circulation around the loo and shower.
Outcome:
- A compact yet considered shower room that delivers on both aesthetic and function. The space feels clean, modern and personal, exactly as envisioned.
- The client was delighted with the final result.





































































