Industrial inspired bathroom in Teddington
- Project cost: £4,000 - £7,000
- Project year: 2024
- Country: United Kingdom
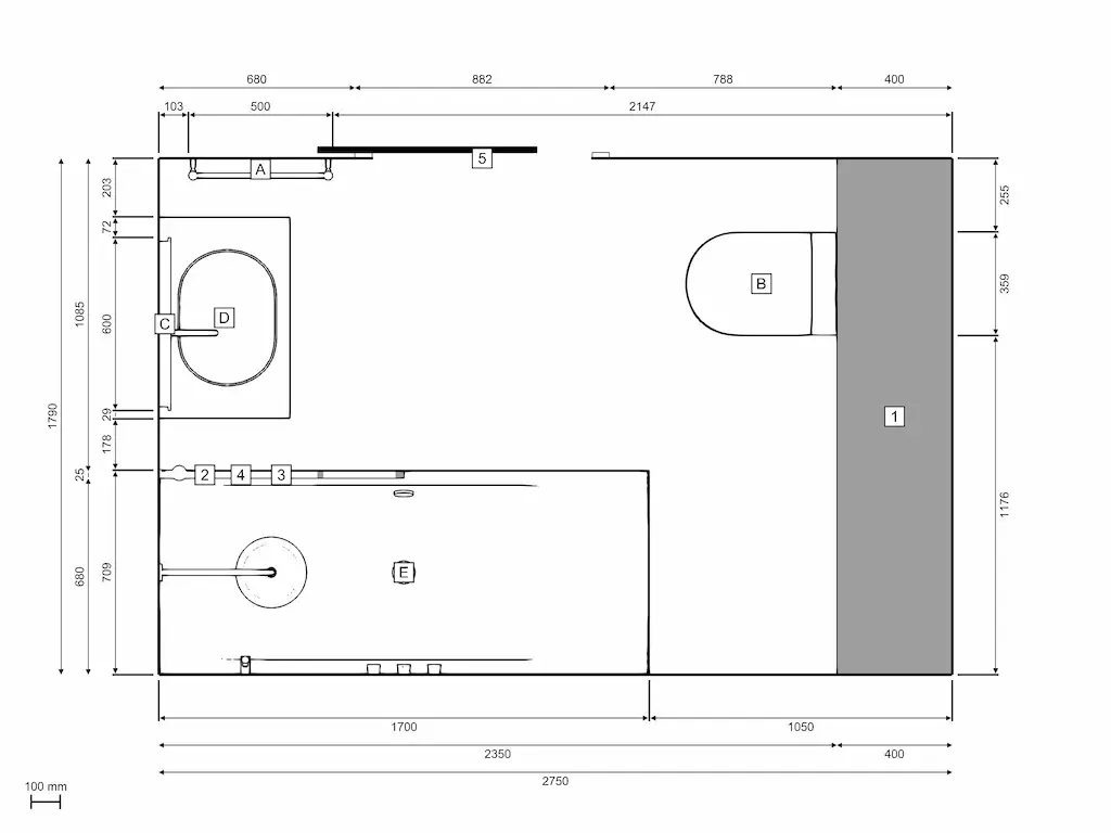
We carefully navigated the limitations of the ceiling height, ensuring that the bath screen was the ideal length for the space. The design came to life with the striking combination of Critall glass by Eastbrook, black AVA tapware, and warm wood-effect tiling by European Tiles. These elements brought together an industrial vibe with a welcoming feel and the Faeber wall-hung basin and toilet added sleek functionality, while the Crosswater basin and AVA tapware helped to complete the modern look. The AVA ladder radiator was both a stylish and practical addition, tying the space together.
Throughout the process, the client was impressed by the seamless design journey and appreciated how we carefully considered every aspect of the space to create a bathroom that felt tailored to their vision and functional needs.
Client Review: “We were recommended this place by a friend, and we couldn’t have asked for a better experience! We were unsure where to begin or how we wanted our new loft bathroom to look (and only had rough measurements to hand), In just two meetings, Jacob expertly guided us through the entire process, designing a bathroom from scratch that we absolutely love! He helped us reconsider what the space could accommodate, suggested the ideal placement for everything, and had brilliant advice on tiling, What also impressed both my husband and me was how well Jacob understood our vague vision of a dream bathroom and brought it to life, all while caring about our needs and ensuring the best possible results, He also had such a deep knowledge of all the associated details—how everything works, what we might need, and clever space planning with varying wall heights, MANY THANKS !!”





































































