Modern Multifunctional Bathroom In Brixton

A modern bathroom designed to maximise space without compromise, successfully integrating a separate bath and shower into a narrow layout through clever horizontal zoning.

Modern Multifunctional Bathroom In Brixton

Budget Range

£7501 - £10000

Project Year

2024

Location

United Kingdom

Room type

Bathroom

Style

Modern, Luxury

Client brief

The client initially believed that including both a separate bathtub and a shower would be impossible given the room's tight and narrow footprint. They sought a design that felt open and functional, with a specific request for bold green tones and a mix of industrial and natural textures.

The process

To overcome the limitations of the narrow room, we shifted the focus from width to length, utilising a staggered layout to create a distinct wet area. A major structural challenge was the concrete subfloor, which made a level-entry shower impossible. We turned this constraint into a feature by specifying a raised platform for the shower, adding a sense of grandeur and creating a clear architectural division within the space.

What we did

Staggered Spatial Planning: Designed a layout that maximises the room's length, allowing for both a separate shower and a double-ended acrylic bath with soft, curved edges.

Textural Contrast: Sourced bold green tiles and specified a herringbone laying pattern to add depth, contrasting them against warm wood basin units and industrial floor tiles.

Technical Specification: Provided Vado brassware specifically chosen to accommodate the property's low water pressure without sacrificing contemporary style.

Maintenance-Led Design: Included a Faeber Zero rimless toilet to ensure a streamlined look and effortless cleaning.

Elevated Feature: Specified a bespoke platform for the shower area, solving the drainage challenge while introducing a high-end, multi-level aesthetic.
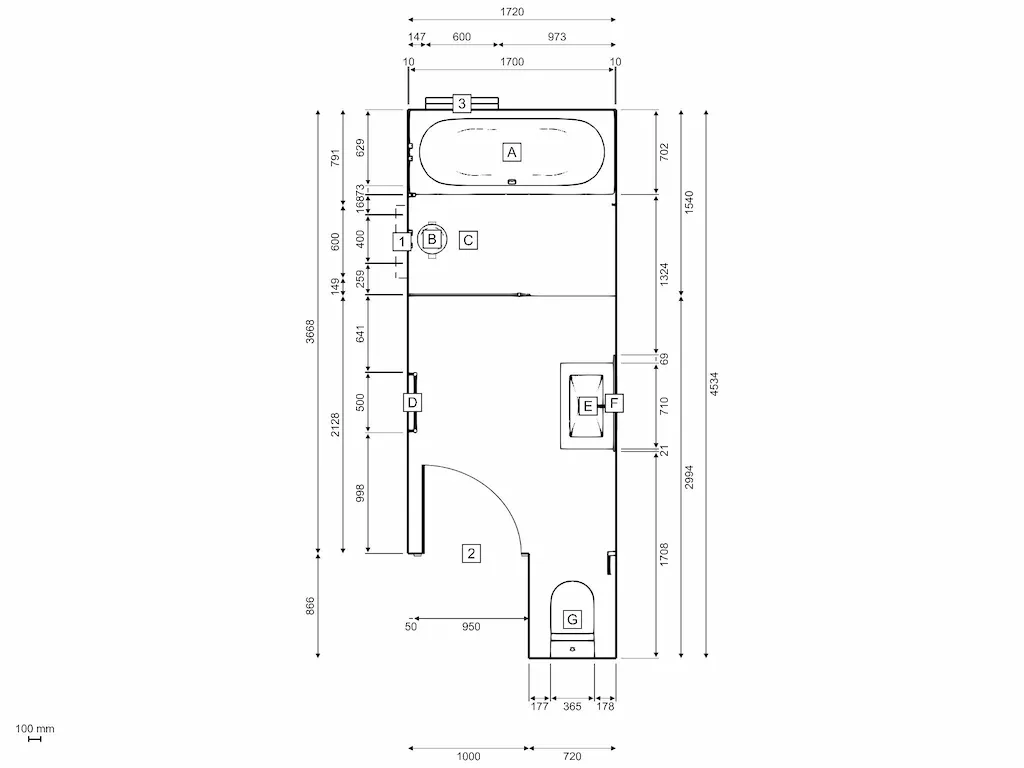
Floorplan

Floor Plan
Walk Through View

3D Design Tour
360° View - Modern Multifunctional Bathroom In Brixton
360° Project Photo

Similar projects

View related bathroom designs inspired by similar styles, materials, and layouts crafted to deliver both elegance and everyday practicality.

High-End Family Bathroom in Morden

High-End Family Bathroom in Morden

A sophisticated transformation of a standard mid-terrace bathroom into a comprehensive 4-piece suite, balancing family d...

Find out more
Two Stylish Bathrooms In South East London

Two Stylish Bathrooms In South East London

A tranquil South East London sanctuary that masterfully blends an earthy, organic palette with subtle pink tones and lux...

Find out more
Contemporary Family Bathroom in North West London

Contemporary Family Bathroom in North West London

A sleek, contemporary main bathroom in North West London that serves as the centrepiece of a triple-bathroom renovation,...

Find out more

What our customers say

Bathroom Design Consultation

Begin your bathroom design journey

Take the first step toward your dream bathroom with our design experts by your side.

Or call us directly at 020 8619 8899