Two Stylish Bathrooms In South East London
- Project cost: £2,000 - £2,100
- Project year: 2024
- Country: United Kingdom
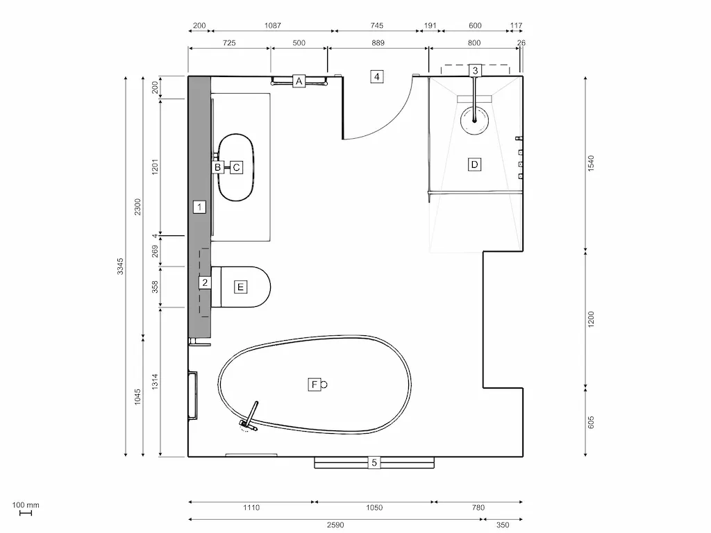
The vision for this bathroom project was to combine luxury with tranquillity, and add a colour scheme of earthy tones mixed with brushed brass..
In collaboration with their Fulham-based designer and Showroom Manager, Nina Dhanani, the client’s vision was brought to life in 3D using our in-house design technology which allowed them to make quick product and design changes in real-time effortlessly.
The cloakroom design was inspired by one of the bathroom displays in our Fulham showroom with the stunning Terra fluted tiles stealing the show.
We are thrilled with the final result of this project and it was a real pleasure to work together with the client on these contemporary bathroom designs!
View The Bathroom





































































