Navy Marble Combination Bathroom in Richmond
- Project cost: £7,500 - £10,000
- Project year: 2025
- Country: United Kingdom
Light, bright, and effortlessly stylish, blending contemporary lines with inviting warmth.
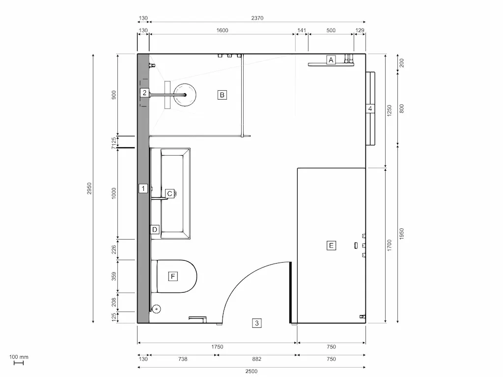
Key Features:
- Stunning blue subway tiles in the shower paired with white marble floor tiles for a fresh, contrasting look.
- Spacious feel enhanced by a 3-door Faeber Edge mirror reflecting natural light and adding depth.
- Kaldewei Bath, seamlessly integrated with floor-matching tiles for a cohesive, luxury feel.
- Vanity Hall Inframe Vanity Unit with crisp lines, complemented by AVA Trend stainless steel tapware for a modern finish.
Client Collaboration:
The client’s easy-going approach let us propose ideas and alternatives, resulting in a final design that surpassed their expectations.
Outcome:
A practical yet striking layout that fits perfectly into the space, maximising the room’s natural light and creating an airy, spacious feel.





































































