Playful Family Bathroom in Pink
- Project cost: £7,500 - £10,000
- Project year: 2025
- Country: United Kingdom
Blend practical function with a fresh, lively colour palette.
Key Features:
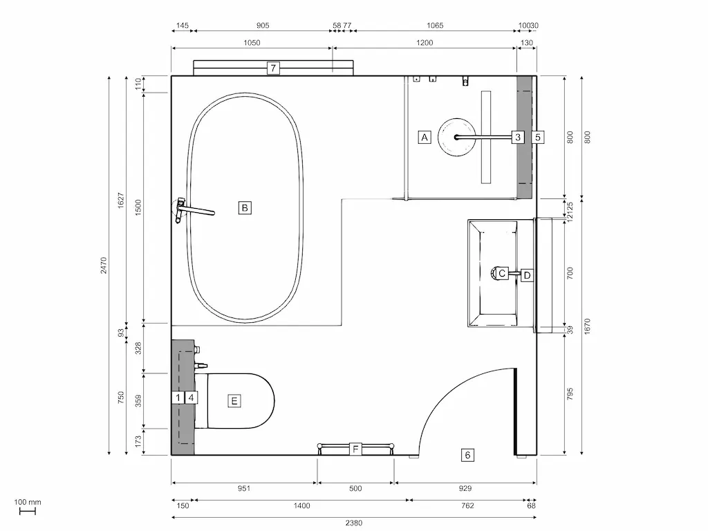
- Pink tiles for a fun, family-friendly vibe, paired with bronze brassware for a modern twist.
- Raised floor to hide plumbing for bath and shower, ensuring a smooth, seamless finish.
- Floating furniture and toilets to maximise space and ease of maintenance.
Client Vision:
Initially no set ideas—modern, sleek, functional bathrooms with good flow.
Process:
- Multiple face-to-face meetings and phone calls, evolving moodboards and ideas.
- Strong rapport built with the clients—encouraging open, collaborative discussions.
Outcome:
A vibrant, family-friendly space that balances style and function perfectly.





































































