A Tranquil Master Ensuite with Smart Space Planning
- Project cost: £6,000 - £9,000
- Project year: 2024
- Country: United Kingdom
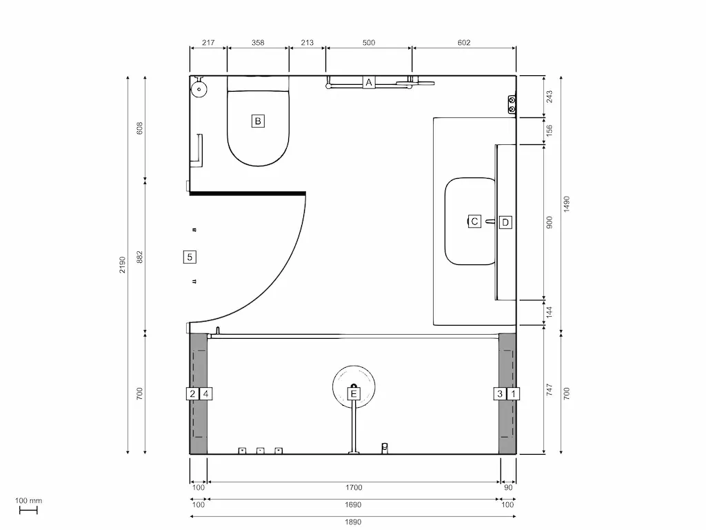
To maintain a serene and cohesive design, the vanity unit was colour-matched in deep blue to the painted wall, creating a striking yet balanced contrast. This was paired with Hope Rose tiles, which added warmth and depth to the space. The Faeber mirrored cabinet provided both functionality and style, while AVA stainless steel tapware and a stainless steel shower door with a minimal frame introduced a sleek, contemporary finish.
The final result was a thoughtfully designed ensuite that maximised space while delivering a luxurious feel. The client was delighted with how the design came together, exceeding his expectations and proving that even in a tricky layout, smart design makes all the difference.
View The Main Bathroom





































































