A Sleek Spa Retreat with Bespoke Steam Enclosure

A breathtaking master bathroom transformation that merges the elegance of a luxury hotel with a restorative spa atmosphere, featuring custom steam technology and organic, matte textures.

A Sleek Spa Retreat with Bespoke Steam Enclosure

Budget Range

£17501 - £20000

Project Year

2026

Location

United Kingdom

Room type

Bathroom

Style

Luxury, Modern

Client brief

The client’s vision was to create a sleek and modern space that felt sophisticated without being "cold". A primary requirement was a "his and hers" arrangement with separate basin areas to enhance their daily routine. The client was also interested in a freestanding bath and a steam room, though they initially had questions about how these larger features would fit and function within the room. Ultimately, they prioritised quality fixtures that reflected their personal style over a strict budget.

The process

With a generous, open space to work with, our designer used our advanced 3D software to show the client how their requested features would perfectly fit the room's proportions. To ensure the project progressed smoothly and met the client's high expectations, all collaboration was done in person. We suggested layout ideas that balanced a "hotel-lux" look with a "sleek spa" feel, focusing on materials like slate stone and matte finishes to keep the large room feeling warm and inviting.

What we did

Custom Steam Experience: Designed a bespoke steam enclosure to give the client a professional-grade spa experience at home.

Matte-Finish Centrepiece: Featured a StoneKast freestanding bathtub with a matte finish as the room's elegant focal point.

His & Hers Utility: Provided separate Faeber basins with a double vanity setup, offering the couple individualised space and ample storage.

Textured Feature Walls: Used striking feature tiles from European Tiles behind the basins and the steam area to add architectural depth and personality to the room.

Warm Metallic Accents: Chosen AVA brass fixtures to provide a beautiful, sophisticated contrast against the cool tones of the slate stone.

Premium Product Curation: Sourced high-quality materials and fixtures that reflected the client's desired aesthetic while managing the budget effectively.

Spacious Sanctuary Layout: Maximised the open floor plan to create a room that is now the client's favourite part of their home renovation.
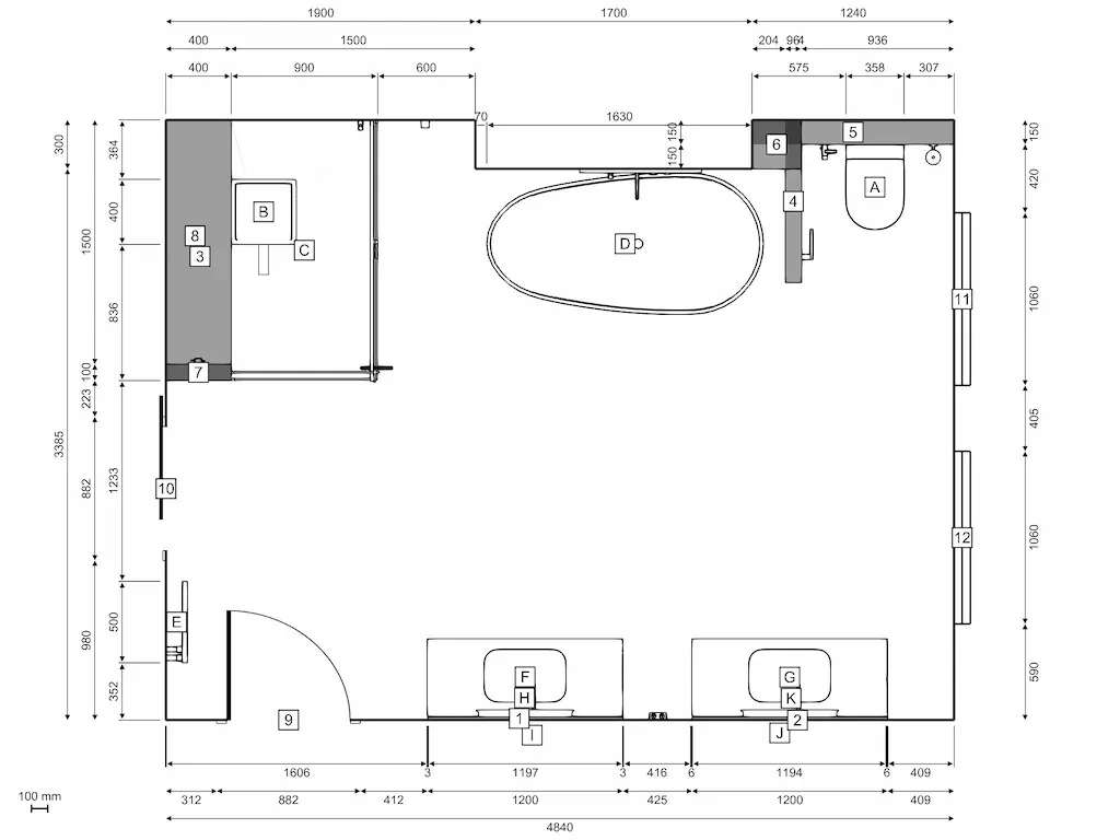
Floorplan

Floor Plan
Walk Through View

3D Design Tour
360° View - A Sleek Spa Retreat with Bespoke Steam Enclosure
360° Project Photo
After - A Sleek Spa Retreat with Bespoke Steam Enclosure
AFTER
Before - A Sleek Spa Retreat with Bespoke Steam Enclosure
BEFORE

Similar projects

View related bathroom designs inspired by similar styles, materials, and layouts crafted to deliver both elegance and everyday practicality.

Artistic Character: A Vibrant Herringbone Retreat in Twickenham

Artistic Character: A Vibrant Herringbone Retreat in Twickenham

A visually captivating transformation in a Twickenham property that celebrates bold textures, traditional silhouettes, a...

Find out more
A Stylish High-End Master Ensuite

A Stylish High-End Master Ensuite

A stunning master ensuite makeover that replaces an old, cluttered layout with a fresh, open space. By using dark charco...

Find out more
Relaxing Bathroom Retreat in Berkshire

Relaxing Bathroom Retreat in Berkshire

A gorgeous and modern shower room within the Seven Stars Barn development, where a "clutter-free" philosophy and bespoke...

Find out more

What our customers say

Bathroom Design Consultation

Begin your bathroom design journey

Take the first step toward your dream bathroom with our design experts by your side.

Or call us directly at 020 8619 8899