Forest and Stone Escape Ensuite

A sleek, modern family bathroom designed to balance aspirational style with mass appeal, perfectly positioned to attract future buyers.

Forest and Stone Escape Ensuite

Budget Range

£2500 - £5000

Project Year

2025

Location

United Kingdom

Room type

Shower Room

Style

Minimalist

Client brief

With the goal of selling the property, the client required a design that felt fresh and contemporary without overspending. The objective was to "get the look for less," creating a space that felt high-end and inviting to a wide pool of potential homeowners.

The process

A tight budget necessitated smart decision-making and strategic investment. Leveraging expert insight into local buyer trends, our designer guided the product selection process, identifying exactly where to save and where to invest to elevate the final finish while keeping the project cost-effective.

What we did

Market-Ready Aesthetics: Selected neutral tones and contemporary fixtures with clean lines to ensure a broad, aspirational appeal for the property market.

Characterful Contrasts: Introduced green tiles against a stone-effect backdrop to inject personality and a "fun" element without pushing the budget into bespoke territory.

Technical Cost-Saving: Maintained the existing plumbing positions in the layout to significantly reduce labour costs and focus the budget on high-impact visual finishes.

Strategic Investment: Combined cost-effective fixtures with warm accents to create a fresh, "new-build" feel that enhances the property’s overall resale potential.
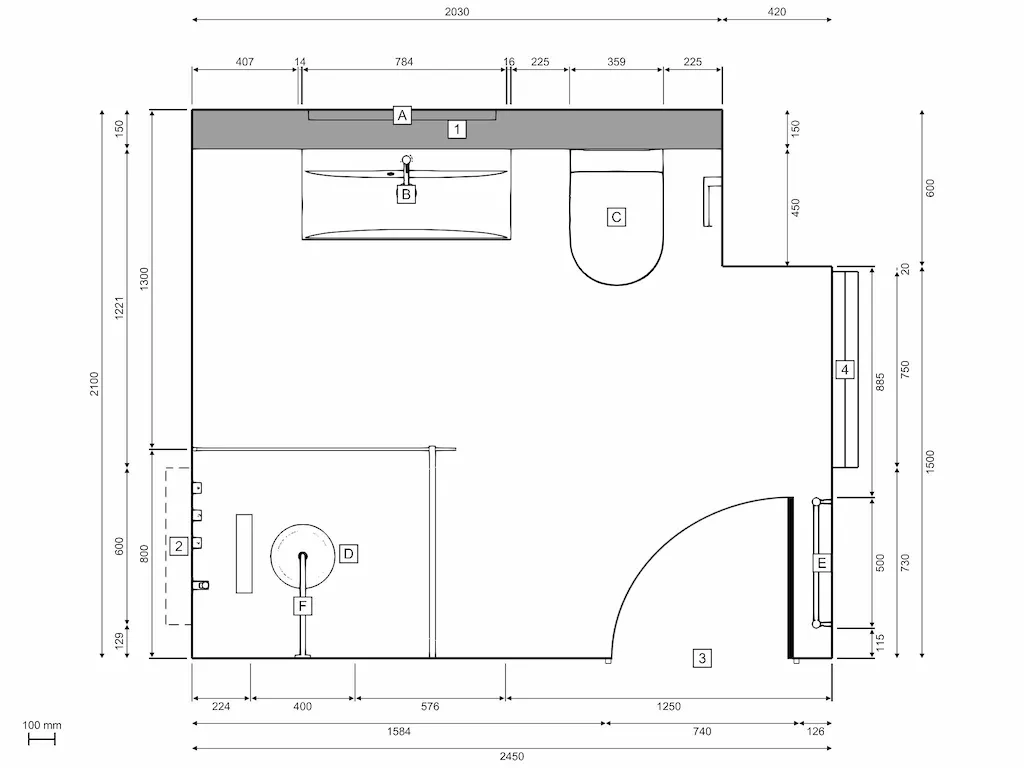
Floorplan

Floor Plan
Walk Through View

3D Design Tour
360° View - Forest and Stone Escape Ensuite
360° Project Photo

Similar projects

View related bathroom designs inspired by similar styles, materials, and layouts crafted to deliver both elegance and everyday practicality.

Soft Minimal Compact Ensuite

Soft Minimal Compact Ensuite

A sleek, modern family bathroom designed to balance aspirational style with mass appeal, perfectly positioned to attract...

Find out more
A Sleek Spa Retreat with Bespoke Steam Enclosure

A Sleek Spa Retreat with Bespoke Steam Enclosure

A breathtaking master bathroom transformation that merges the elegance of a luxury hotel with a restorative spa atmosphe...

Find out more
A Stylish High-End Master Ensuite

A Stylish High-End Master Ensuite

A stunning master ensuite makeover that replaces an old, cluttered layout with a fresh, open space. By using dark charco...

Find out more

What our customers say

Bathroom Design Consultation

Begin your bathroom design journey

Take the first step toward your dream bathroom with our design experts by your side.

Or call us directly at 020 8619 8899