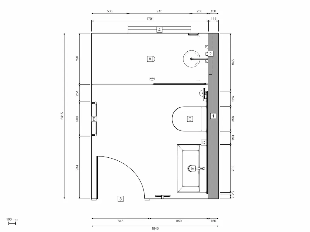
A 1930s-Inspired Main Bathroom with a Modern Twist
- Project cost: £6,000 - £9,000
- Project year: 2024
- Country: United Kingdom
The design centred around Hope Olive subway-style tiles, a nod to the heritage of the area while maintaining a fresh and sophisticated feel. To enhance the warmth and luxury of the space, AVA brushed gold tapware was introduced, creating a perfect balance between old and new. The neutral canvas of floor tiles allowed the walls to take centre stage, ensuring a timeless and elegant aesthetic.
A key challenge in the design process was ensuring the bathroom remained practical for daily use while feeling unique. The thoughtful selection of materials and finishes allowed for a visually striking yet highly functional space, seamlessly complementing the rest of the home.
This is a main bathroom that perfectly reflects the clients original vision - a harmonious blend of modern design and classic charm. As he put it, "The transformation is incredible, we’re a bit too scared to use it!"
View The En Suite





































































